17/33 Taranaki Street, Te Aro
Leased
Available from 23rd Sep, 2025
Inner-City Loft-Style
3
2
1
1
To view this property, please book through Renti at:
https://www.renti.co/browse/tommys-property-management/RBPR001378/book
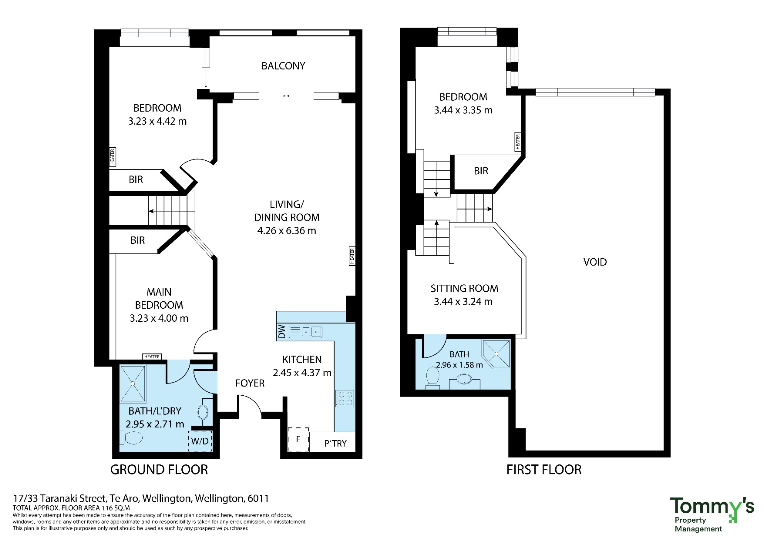
This secure three-bedroom apartment is well positioned in Taranaki Street close to the waterfront and the capital's inner-city heart, within metres of the best bars and eateries, it offers easy access to the motorway and is only a short harbour stroll from the CBD and railway station.
Features include:
Loft-style layout, complete with double-height stud in the spacious open-plan kitchen and living/dining area.
Indoor-outdoor flow to large recessed balcony that also can be accessed from one of the bedrooms.
Convenience of two bathrooms, one upstairs, one down.
Fantastic industrial-chic character, from concrete and steel beams to exposed brick walls.
Surprisingly quiet given the proximity to everything that makes the inner-city such an exciting place to live.
As well as all this and excellent security, it comes with a garage car park.
You can also apply online at:
http://www.tommysrentals.co.nz/apply
Move-in costs:
4 weeks’ rent as bond
1 week’s rent in advance
Chattels include;
Stove, Cooktop/Oven, Rangehood, Drapes, Blinds, Curtains, Fixed Floor Coverings, Light Fittings, Dishwasher, Extractor Fan, Heated Towel Rail, Washing Machine, Dryer, Three Bar Stools, Side Board, Round Mirror, Garage Door Opener
https://www.renti.co/browse/tommys-property-management/RBPR001378/book
This secure three-bedroom apartment is well positioned in Taranaki Street close to the waterfront and the capital's inner-city heart, within metres of the best bars and eateries, it offers easy access to the motorway and is only a short harbour stroll from the CBD and railway station.
Features include:
Loft-style layout, complete with double-height stud in the spacious open-plan kitchen and living/dining area.
Indoor-outdoor flow to large recessed balcony that also can be accessed from one of the bedrooms.
Convenience of two bathrooms, one upstairs, one down.
Fantastic industrial-chic character, from concrete and steel beams to exposed brick walls.
Surprisingly quiet given the proximity to everything that makes the inner-city such an exciting place to live.
As well as all this and excellent security, it comes with a garage car park.
You can also apply online at:
http://www.tommysrentals.co.nz/apply
Move-in costs:
4 weeks’ rent as bond
1 week’s rent in advance
Chattels include;
Stove, Cooktop/Oven, Rangehood, Drapes, Blinds, Curtains, Fixed Floor Coverings, Light Fittings, Dishwasher, Extractor Fan, Heated Towel Rail, Washing Machine, Dryer, Three Bar Stools, Side Board, Round Mirror, Garage Door Opener
Property Information
Property Type
Apartment
Bedrooms
3
Bathrooms
2
Parking
Secure Garage
Furnishings
As listed in the advertising text
Property Code
TMY1378
More rentals in Wellington

Character & Charm in the Heart of Hataitai
98 Moxham Avenue, Hataitai
3
1
$830 week

Space, Character & City Convenience Combined
B/21 Tinakori Road, Thorndon
5
2
2
$1,200 week

Become a City-Dweller on The Terrace!
6P/154 The Terrace, Wellington Central
1
1
$450 week

Become a City-Dweller on The Terrace!
5O/154 The Terrace, Wellington Central
1
1
$555 week



















